
Căn hộ ba phòng ngủ ở xã Thạch Trung, thành phố Hà Tĩnh, diện tích 275 m2. Vợ chồng trẻ từ nông thôn lên thị thành lập nghiệp, muốn không gian sống thoáng, có vườn, thông gió tự nhiên như ở quê.
Ngoài công năng cơ bản, gia chủ yêu cầu tổ ấm phải có các chi tiết gợi nhớ hàng hiên lợp ngói đỏ truyền thống, sử dụng chất liệu đơn giản, thân thiện tăng tính thô mộc của thiết kế.
Dựa trên yêu cầu của chủ nhà, đội ngũ kiến trúc sư đề xuất cấu trúc định hình rõ không gian chung và riêng. Trong đó, khu riêng được sắp xếp thành từng khối, các khoảng trống còn lại luân chuyển, kết nối từ dưới lên trên, trong ra ngoài. Giải pháp này giúp các thành viên có thể tương tác với nhau từ bất cứ vị trí nào.

Bản vẽ căn nhà.

Đặc biệt, đoạn cầu thang gỗ kết nối khối không gian ở tầng hai tạo tầm nhìn thông thoáng từ bốn phía. Chủ nhà tận dụng khoảng trống dưới cầu để treo xích đu, tạo điểm nhấn thiết kế.
Từ hướng cổng chính vào, cầu thang nối hai tầng nằm góc trái, chuyển tiếp khoảng sân dùng làm gara. Để giữ cấu trúc mở của căn nhà, đội ngũ thi công không xây tường ngăn, mà gắn bốn khung thép, ráp thành hệ thống cửa kính chắn hai khu vực.
Ba khoảng trống trong nhà gồm: sảnh, khu vực phòng khách, vùng lưng bếp được lấp đầy bằng những mảnh vườn nhỏ, giúp mọi không gian sinh hoạt luôn có điểm nhìn hướng ra cây xanh.
Do gia chủ yêu cầu lưu giữ dấu ấn nhà Việt ngói đỏ ba gian, đội ngũ thiết kế đề xuất ý tưởng xẻ gạch ống bốn lỗ, ốp kín tường thông hai tầng. Kiến trúc sư cho biết công đoạn này mất nhiều thời gian do gạch nung dễ vỡ, cần tỉ mỉ từng chi tiết.

Mặt bằng tầng 1.

Phòng ngủ tầng hai trang bị cửa kính cường lực, giúp mở rộng tầm nhìn hướng ra hồ nước bên ngoài khuôn viên.

Hành lang tầng hai thông thoáng, đón nắng, gió lùa từ các luồng không gian rỗng trong nhà. Gia chủ bố trí các bồn rửa tay, bàn học... vào những góc trống ở khu này.

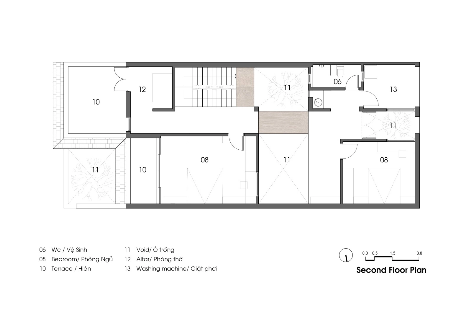
Mặt bằng tầng 2.
Vợ chồng trẻ ưu tiên sử dụng nội thất gỗ, thiết kế đơn giản gợi nhớ vật dụng xưa trong căn nhà tuổi thơ.
Chi phí hoàn thiện nhà khoảng 2,2 tỷ đồng.
Tuệ Khương
Thiết kế và xây dựng: DOM Architect Studio
Ảnh: Chimnon Studio